黔东南州交通旅游建设投资(集团)有限责任公司官方网站
服务热线:0855-8067676
首页
走进交旅
集团简介
发展大事
集团架构
职能机构
高管信息
法人治理结构
下属企业
贵州中凯交通建设有限责任公司
黔东南州交旅城市投资开发有限公司
黔东南州交旅投资产业管理有限公司
黔东南州畅达城市更新建设发展有限公司
凯里东方城建置业开发有限公司
新闻中心
集团新闻
子公司新闻
党建工作
党的建设
廉政建设
工会工作
信息公开
联系我们
联系我们
首页
信息公开
招投标信息
正文
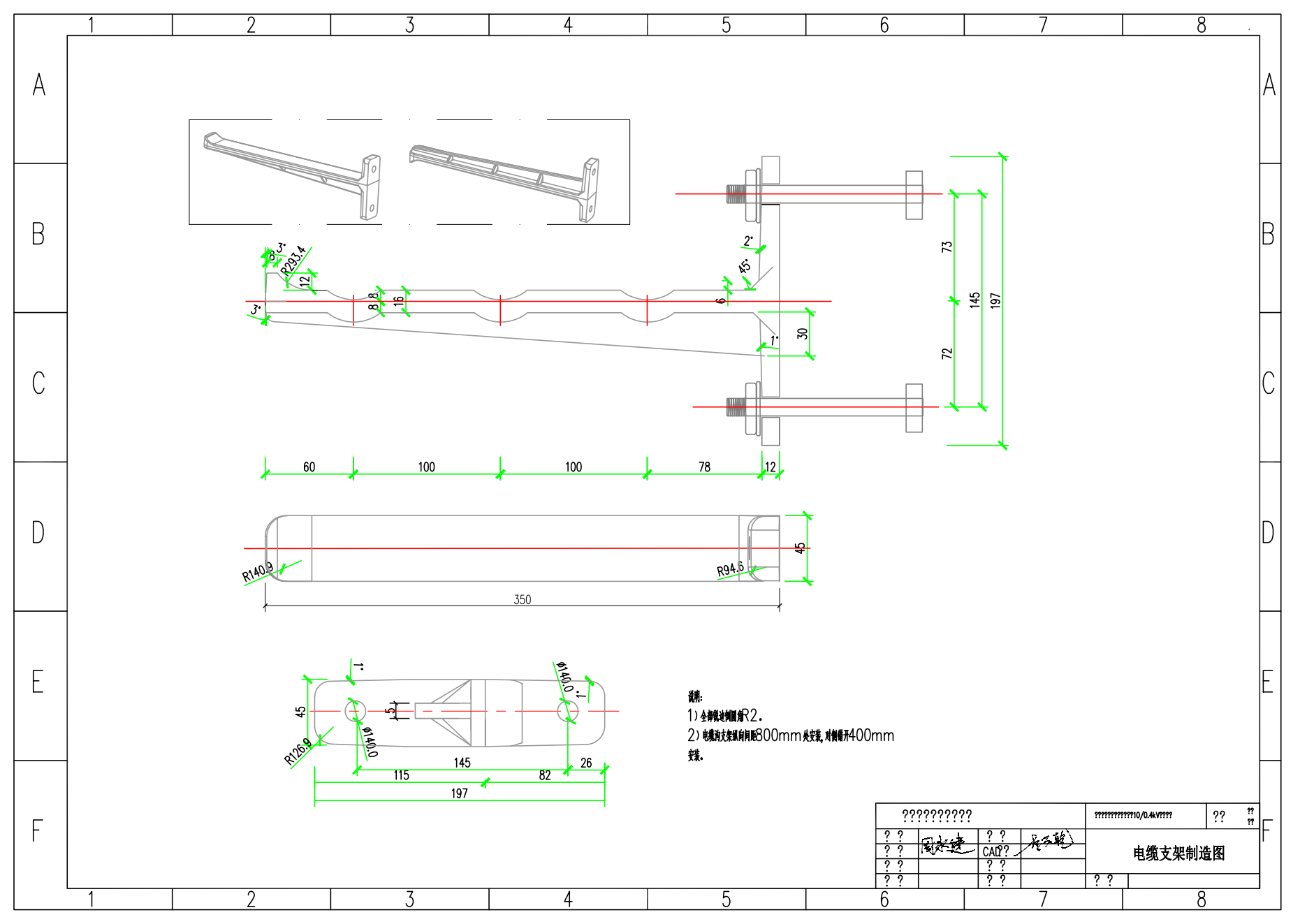
黔东南州粤黔大健康医药产业园(B区)项目一期工程10-0.4kV配电工程(永久用电)询价公告
发布时间:2024-06-12 09:36:23
上一篇:凯里东方广场商业项目新进运营管理团队市场询价公告
下一篇:畅达国际广场项目结算复审中标候选人公示
走进交旅
集团简介
发展大事
集团架构
职能机构
高管信息
法人治理结构
下属企业
贵州中凯交通建设有限责任公司
黔东南州交旅城市投资开发有限公司
黔东南州交旅投资产业管理有限公司
黔东南州畅达城市更新建设发展有限公司
凯里东方城建置业开发有限公司
新闻中心
集团新闻
子公司新闻
党建工作
党的建设
廉政建设
信息公开
信息公开
联系电话:0855-8067676
违规违纪举报受理电话:0855-8064590
通信地址:贵州省凯里市凯开大道北侧畅达国际广场市民之家15楼
Copyright © 2022 黔东南州交通旅游建设投资(集团)有限责任公司 版权所有
黔ICP备2021010605号-2